Minutes after hearing the surprise announcement on June 28 that a food hall would be the next occupant of the vacant Company Shops Market in downtown Burlington, I had a couple of questions. The first was answered by a story I found in Forbes magazine about the emergence of food halls across the nation.
The second question I posed to Wellsley Robinson of Core Properties, which is the owner and developer of the 12,000-square-foot former home of the co-op grocer that closed in May of 2018: Why a food hall for downtown Burlington?
I caught up with Robinson while she was traveling in Ithica, New York. We had a wide-ranging discussion about the food hall concept — it’s like an indoor food truck court — why it’s good fit for the old Company Shops Market location, how it might work in Burlington and where it fits in the continued and encouraging development in downtown, especially Front Street. Core Properties is a major player in the revitalization of downtown Burlington. It has redeveloped and leased to multiple successful Front Street locations that include The Blend and Co., Owl and Rabbit Gallery, Steam Junction, Smitty’s, and the Front Street Bottle Shop.

A sign from a few years ago by Core Properties envisioning what has become the courtyard between The Blend and Co. and Steam Junction.
Robinson said the food hall — which is officially named Burlington Food Hall — was a concept that came together after a survey taken by the Burlington Downtown Corporation during the St. Patrick’s Day festival downtown earlier this year.
“Overwhelmingly people indicated that food is a driving interest. They wanted a gathering place, a community-centered venue with more than one dining option. They wanted a place like Fosters (Market in Durham),” Robinson said and added that at about the same time she heard from a local chef interested in being part of a food hall in Burlington. “He came forward at roughly the same time. He said this is a perfect location to have a food hall and would we consider it.”
Robinson was excited by the idea and knew the Company Shops site had many elements for a restaurant already in place, including kitchen and freezer space. Robinson and others are also energized by the success of Burlington Beer Works, which opened a couple of months ago. Robinson believes that more dining options in downtown will draw even more people.
“The Burlington Beer Works is so well received and so vibrant. We just need more locations, as density grows and there are more locations for people to go to, it creates more density. We need more than a few locations,” Robinson said. “It’s been proven that if we provide more spots people will come and enjoy them.”
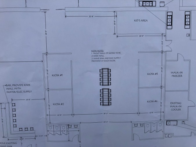
The Burlington Food Hall will have four kiosks with different chefs at each one — and different names, like a food truck. In fact, Robinson said she has chefs from food trucks lined up to occupy three of the kiosks but no final contracts have been signed. “The goal is to have vendors that complement each other,” Robinson says.
A restaurant will manage the entire Burlington Food Hall, oversee the bar and all front of the house operations. Kitchen prep space will also be available for rent by caterers or food trucks that operate out of town.
“The restaurant that comes in will shape the space,” Robinson said. “We want people to come in and sit at the bar and have ambience and vibrancy with wine, specialty cocktails and beer. We want people to feel at home, like they’ve done at the Beer Works.”
To foster a community atmosphere, seating will be family style with long tables and benches. Customers can sit where they can fit their party. There will be an area for kids to play while their parents are enjoying what the food hall has to offer.

Robinson sees the development of downtown as working in a space with a variety of pieces. Fitting the pieces together is the goal and challenge. The results so far have been worthwhile, she said.
“I’m so pleased with development on Front Street. Everything is taking another step forward. My big picture is community and how it all fits, not just downtown but the city and how we interplay with each other. Downtown is the heart and soul of that. The core that you identify with is the downtown,” Robinson said. “We’re breathing life back into these buildings but in a strategic way.”
Robinson said the role of Core Properties is to find and renovate buildings. Businesses like Smitty’s or The Blend and Co. take if from there.
“Buildings have their own life and vitality, they have a sense of personality, to me. When I walk in as Core Properties, I look at it as an urban renewalist. What can I bring back, what does the community want, how can we get it and who can we get to make it happen, It’s like a puzzle. You try to find pieces that fit and so far it’s worked together,” She said. “All the businesses are finding their own paths and directions. I’m really happy for each of those guys.”
The next puzzle piece, of course, is Burlington Food Hall. Robinson hopes it can open by late October or early November. That sounds very ambitious, even in a building that has been recently renovated and might require very little work.
The proposal itself has drawn a lot of excitement. People are definitely interested. Many people spoke to me about it after the announcement and my post on this site about it is among the most popular in the two-plus years I’ve been writing on Madison’s Avenue. People like the concept of multiple food options. They also like that the Burlington Food Hall could be an incubator for future restaurants in the county. A young chef can get a start at Burlington Food Hall.
“I like the idea of a restaurant incubator that’s creative and energetic. I would love to be a part of that. Something that’s put out there and if it comes together than will be really exciting,” Robinson said.
Perhaps a gluten free, dairy free, soy free health type of food kiosk could be offered as opposed to the usual southern fried food assortment?
LikeLiked by 1 person
I think you can expect some of those kinds of options.
LikeLike
Pingback: Murals can visually define a downtown. Denver is one example (photo galleries) | Madison's Avenue
Pingback: Just a phase: Getting out and around — a little | Madison's Avenue
Pingback: The long-anticipated Burlington Food Hall is opening soon | Madison's Avenue